download

riga
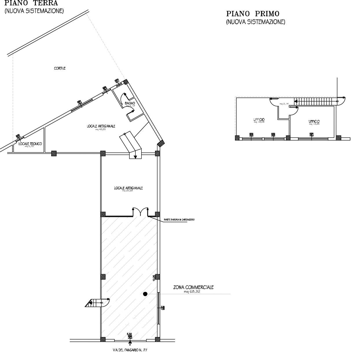
Cagliari - Via Del Fangario, 27

Planimetria del locale.
download
fangario_planim
(file JPG - 110 KB)
riga

Senorbì - Via Papa Giovanni

Piano commerciale
Primo e secondo livello
Prospetti sud - ovest - est
Scantinato
Terrazza

download
via_papa_giovanni
(file ZIP - 621 KB)
riga

Senorbì - Ex Banco di Sardegna - Via Carlo Sanna

Planimetrie dei piani 1-5, piano terra, piano interrato
Prospetti
Sezioni

download
ex_banco
(file ZIP - 192 KB)
riga

Olbia - Via Namibia (pressi Via Corea)

Planimetria piano terra

download
olbia_via_corea
(file GIF - 533 KB)
riga
download
Via Carlo Sanna, 6/G - 09040 Senorbì (CA) - Tel. 070.9808377 - P.IVA 02122280924